die Sie sich gemerkt haben?
ges peicherten Artikel zu sehen.
Art.-Nr. 30661
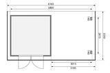
Das Gartenhaus Trittau 3 aus nordischer Fichte von KARIBU wird aus 40 mm Wandbrettern im Steck-/Schraubsystem gefertigt und kann somit rasch und einfach aufgebaut werden. Das praktische Pultdach aus Massivholz sorgt dafür, dass das Gartenhaus schnell und wirkungsvoll gegen Witterungseinflüsse geschützt ist. Das Haus hat eine Grundfläche von ca. 7,5 m² und ca. 15,93 m³ umbauten Raum. Dank der Seitenhöhe von ca. 196 cm und einer Firsthöhe von ca. 217 cm sorgt das Haus innen für viel Platz. Das Gartenhaus hat ein Sockelmaß von ca. 282 x 282 cm. Kesseldruckimprägnierte Bodenbalken sorgen für optimalen Schutz gegen aufsteigende Feuchtigkeit. Durch die Positionierung unter dem Gartenhaus schützen die Bodenbalken effektiv vor Staunässe und Spritzwasser. Das Gartenhaus wird mit der, praktischerweise schon vormontierten Tür, im stabilen Massivholzrahmen ausgeliefert und bietet dank der großen Öffnung bequemen Zutritt in das Haus. Nebenbei bietet sie effektiven Schutz vor Diebstahl. Gleichzeitig lassen die großzügigen Lichtausschnitte im jeweiligen Türflügel ausreichend Tageslicht in das Gartenhaus einströmen.
Sehen Sie sich auch das zahlreiche Zubehör an, welches Sie in der entsprechenden Rubrik bei uns finden.
Bitte beachten: das Gartenhaus wird ohne Fußboden und, sofern nicht anders ausgewählt oder angegeben, auch ohne Zubehör angeliefert. Dieses können Sie separat oder schon als Set beim Artikel selber erwerben.
Das Modell wird aus ökologischen Gründen ohne Dachbelag zur Ersteindeckung angeliefert. Für eine langfristige und beständige Dacheindeckung wird die selbstklebende Dachfolie (Art-Nr. 17950) empfohlen, welche Sie ebenfalls bei uns in der entsprechenden Zubehör-Rubrik erwerben können. Bitte beachten Sie den variierenden Rollenbedarf in den Details.
Ihre Vorteile
| ✔ | Made in Germany Das in Bremen ansässige Unternehmen legt besonderen Wert auf Qualität. Demnach wird dieses Modell auch in Deutschland hergestellt. |
| ✔ | Vielseitig erweiterbar Das zahlreiche Zubehör von KARIBU sowie die Anbauten lassen der Kreativität freien Lauf. Sowohl beim stilvollen Einrichten des Innenbereichs als auch beim Dekorieren der Fassaden. |
| ✔ | Lange Herstellergarantie Überzeugt von Qualität und Stabilität gewährt der Hersteller KARIBU eine fünfjährige Herstellergarantie auf die Konstruktion. |
| ✔ | Aus nordischer Fichte Insbesondere bei Gartenhäusern eignet sich die naturbelassene oder lackierte nordische Fichte, auf Grund ihrer widerstandsfähigen Materialeigenschaften und der einheitlichen Optik. |
Lieferumfang
1x KARIBU Trittau 3 Gartenhaus, ca. 616,5 x 297 x 217 cm
Bitte berücksichtigen Sie, dass die Anlieferung dieses Artikels per Spezialspedition erfolgt und die Ware mit einem großen 40t - LKW angeliefert wird. Die angegebene Lieferadresse muss entsprechend für dieses Fahrzeug anfahrbar sein.
| Attribute | Werte |
|---|---|
| Breite | 297 cm |
| Dachart | Pultdach |
| Hauptfarbe | Naturbelassen |
| Hauptmaterial | Fichte |
| Länge | 616,5 cm |
Hauptmaterial, Gestell:
Fichte
Fichtenholz ist in Europa die am häufigsten vorkommene Holzart. Die Bäume wachsen zudem schnell, so dass das Holz preiswert gehandelt wird. Fichtenholz hat eine helle Farbe, die mit der Zeit gelbbbraun nachdunkelt. Die Oberfläche weist eine Maserung auf, die deutlich Astlöcher zeigen kann. Das Holz weist eine gute Tragfähigkeit auf und wird daher gern als Konstruktionsholz verwendet. Fichtenholz muss für den Außeneinsatz mit Holzschutzmitteln behandelt werden, damit es ansehnlich bleibt.
Reinigung: Um Fichtenholzmöbel sauber zu halten, verwenden Sie ein weiches, feuchtes Tuch und eine milde Seifenlösung. Es ist wichtig, dass Sie das Holz nach jeder Reinigung gut trocknen, um Wasserschäden zu vermeiden. Fichtenholz kann empfindlich auf Witterungseinflüsse reagieren, daher empfehlen wir, die Gartenmöbel mit geeigneten Holzschutzmitteln wie Lacken oder Ölen, die speziell für den Außeneinsatz entwickelt wurden, regelmäßig zu pflegen. Zum langfristigen Schutz sollte die Behandlung in regelmäßigen Abständen wiederholt werden. Lagerung: Für die Lagerung von Fichtenholzmöbeln ist es wichtig, sie an einem trockenen, geschützten Ort zu lagern, um sie vor extremen Temperaturen und Feuchtigkeit zu schützen. Idealerweise sollten die Möbel in einem geschlossenen Raum wie einer Garage oder einem Schuppen untergebracht werden. Falls die Möbel während der kälteren Monate draußen bleiben müssen, ist es ratsam, sie mit einer atmungsaktiven, wasserdichten Abdeckhaube mit Platz zur Luftzirkulation abzudecken.